中野区鷺宮4丁目の中古一戸建
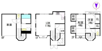
*間取り2LDK
*トイレ2ヶ所有♪
*収納充実!
*天井裏収納有♪
*徒歩圏内の買物施設充実!
-
ローンシミュレーションこの物件を購入した場合の、月々の支払い価格の一例です。借り入れを保証するものではございません。
- 返済期間
-
- 金利
-
- ボーナス時の増額(1回分)
-
- 借入金額:
-
- 頭金:
-

- 毎月の返済額:
(※元利均等方式 金利5.00%まで ※返済年数5~50年まで入力できます)
(※ボーナスは年2回で計算しています。1000万円まで入力できます)
(※物件購入時、その他諸費用が発生する場合がございます)
情報の見方担当者のコメント はじめちゃん(仮)

- 【おすすめポイント】
*間取り2LDK
*トイレ2ヶ所有♪
*収納充実!
*天井裏収納有♪
*徒歩圏内の買物施設充実!
《周辺施設》
○セブンイレブン中野鷺宮店・・徒歩1分
○ファミリーマート鷺宮駅前店・・徒歩2分
○ウエルシア中野さぎの宮店・・徒歩3分
○オーケー中杉店・・徒歩4分
○スギドラッグ鷺宮・・徒歩5分
●鷺の杜小学校・・徒歩3分
●明和中学校・・徒歩24分
ポイント・特徴
物件概要
【中古一戸建】 物件番号:90354652 情報更新日:2025年11月08日 次回更新予定日:2025年11月22日所在地 東京都中野区鷺宮4丁目36-13 交通 間取り/詳細 2LDK/ 建物面積(坪数) 69.24㎡(20.94坪) 価格 3,780万円 駐車場/月額料金 有(1台)/- 土地の敷金/保証金 -/- 借地料/借地期間 -/- 土地権利 所有権 土地面積(坪数) 43.93㎡(13.28坪) 傾斜地部分面積 - 路地状敷地 - 私道負担面積/セットバック 46.50㎡/要 2.00㎡ 高圧線下面積 - 地目/地勢 宅地/- 接道状況 二方(北 私道 4.0m 間口 7.0m)(東 私道 3.2m 間口 5.0m) 建ぺい率/容積率 50%/150% 用途地域 第一種低層住居専用 都市計画 市街化区域 種別/構造 中古一戸建/木造 階建 2階建 地下1階 築年月(築年数) 1992年 7月 (築33年) 総区画数/販売区画数 -/- 向き - 現況 空家 その他の法令上の制限 高度地区/準防火地域/※土地面積とは別に私道負担46.50平米の内、4829分の773有 取引態様/引渡時期 専属専任媒介/相談 建築確認番号 - 物件番号 90354652 取引条件の有効期限 2025年11月22日 設備条件 - 出窓
- 都市ガス
- 公営水道
- 公共下水
- 電気有
- 屋根裏収納
備考 ※土地面積とは別に私道負担46.50平米の内、4829分の773有
※車庫:奥行380センチメートル幅250センチメートル高さ160センチメートル取扱会社 - 株式会社グローバル不動産販売 東京店
- 東京都渋谷区東1丁目27-6
- TEL:03-6433-5432
- 国土交通大臣 (2) 第9112号
※地図上に表示される物件の位置は付近住所に所在することを表すものであり、実際の物件所在地とは異なる場合がございます。
物件お問い合わせ





















